Bilocale in vendita

Tignale, Via Chiesa - Gardola
€ 180.000
2 locali 2 locali
84 Mq 84 Mq

Bilocale in vendita

Tignale, Via Chiesa - Gardola

Descrizione annuncio

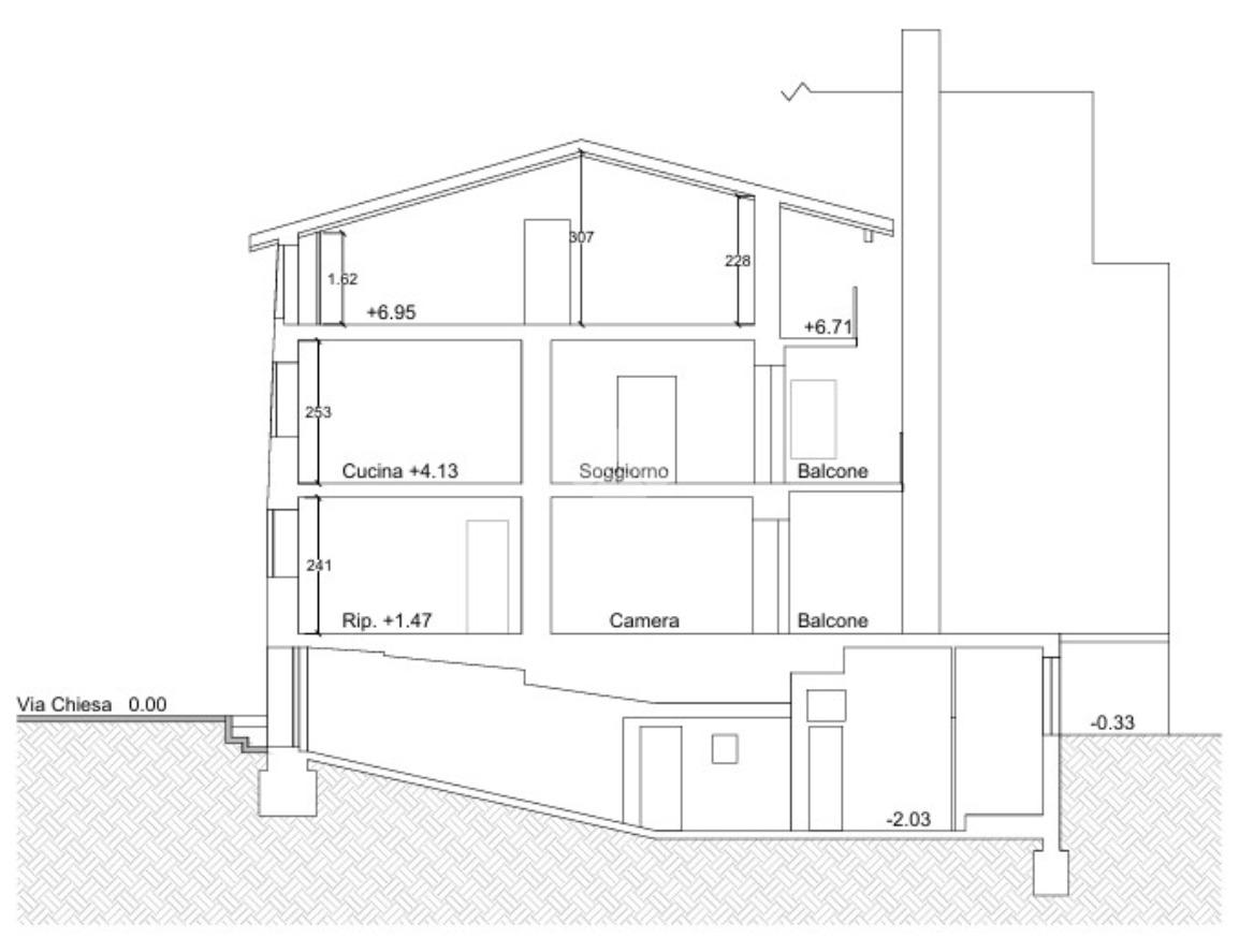
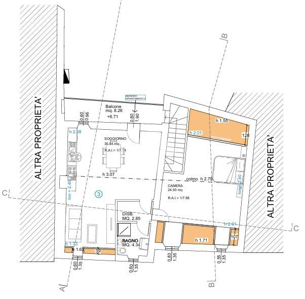
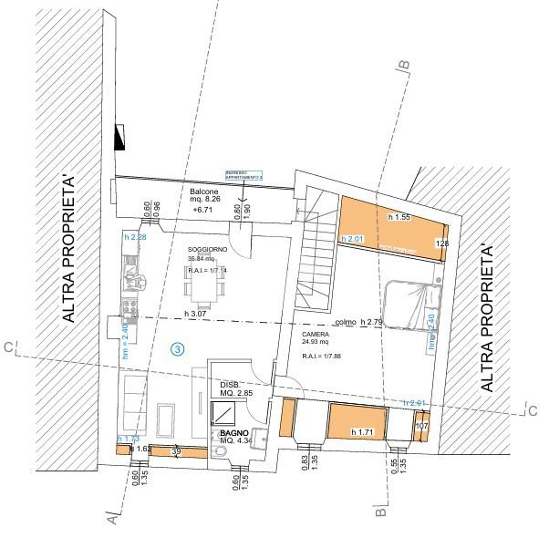
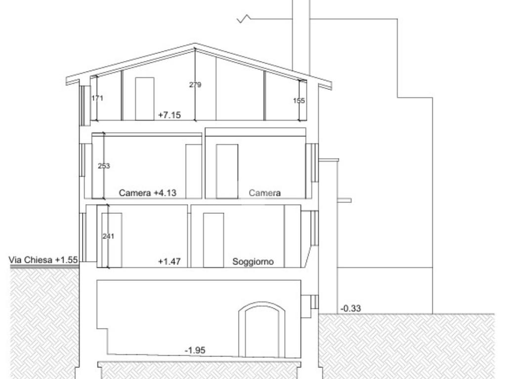
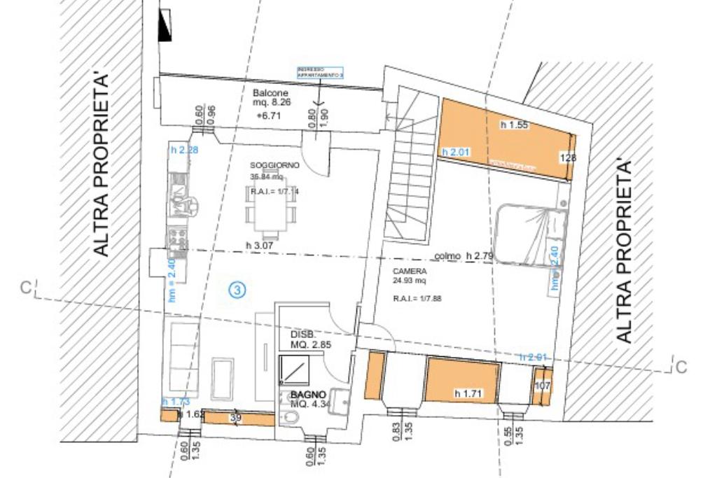
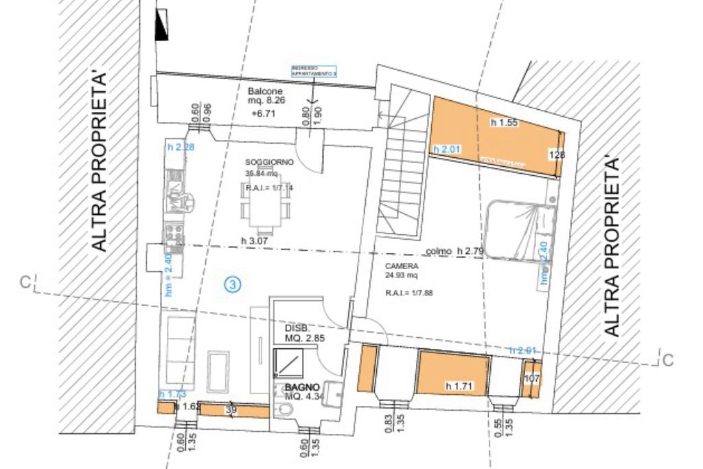
BILOCALE MANSARDATO CON BALCONE

COSA SAPERE DELL'IMMOBILE

L’appartamento che vi proponiamo in vendita è un appartamento Bilocale sito in posizione centrale a Gardola di Tignale.

L’immobile deriva dalla ristrutturazione di una vecchia casa di paese dove verranno ricavate tre unità: Questo appartamento è sito secondo ed ultimo piano, ed è composto da:

Zona giorno con angolo cottura e affaccio sul balcone, bagno finestrato con doccia ed ampia camera da letto matrimoniale.

La soluzione che proponiamo deriva quindi da un’attenta ed elegante ristrutturazione che prevede finiture di ottimo livello, partendo dall’impiantistica. Infatti gli immobili prevedono pompa di calore, con split singoli in ogni stanza per regolare sia l’aria calda che l’aria fresca, e moderni termoarredi nel bagno.

Gli infissi esterni prevedono il recupero degli attuali, per garantire continuità del contesto circostante, mentre quelli interni prevedono triplo vetro e colori chiari per dare un tocco di modernità e portare ulteriore luminosità agli ambienti interni.

Relativamente ai pavimenti e al rivestimento dei bagni, questi saranno in gres porcellanato di medio formato con possibilità di scelta dei colori.

Gli immobili verranno consegnati completi di cucina con elettrodomestici.

Consegna prevista fine estate 2026.

-

Two-room flat in Gardola di Tignale.

The property is the result of the renovation of an old house, which will be converted into three units: This flat is situated on the second and top floor, and comprises:

A living area with a kitchenette opening onto the balcony, a bathroom with a window and shower, and a spacious double bedroom.

The property is the result of a careful and elegant renovation featuring high-quality finishes, starting with the building services. With a heat pump, with individual split units in every room, and modern heated towel rails in the bathroom.

The external window frames will be refurbished to ensure continuity with the surrounding environment, whilst the internal ones will feature triple glazing and light colours to add a touch of modernity and bring additional light into the interior spaces.

As for the tiling, these will be medium-sized porcelain stoneware with a choice of colours.

The properties will be sold with a fitted kitchen and appliances.

Handover is scheduled for late summer 2026.

Mostra tutto

Nelle vicinanze

Trasporto pubblico Trasporto pubblico
Trasporto pubblico
120 m
Campione
2,6 Km
Ricariche auto elettriche Ricariche auto elettriche
Gardauno Tignale (Gardola)
110 m
GARDAUNO TIGNALE Assisi (GARDOLA)
150 m
Scuole Scuole
gardakitesurf.com
3,0 Km
Farmacia Farmacia
Farmacia Frassine
130 m
Supermercati Supermercati
Centro Acquisti
30 m
Per Bacco
60 m
Conad
230 m
Supermercati
2,9 Km
Negozi Negozi
Confezioni Lorenmarket
70 m
Peperosa
70 m
Marten
70 m
Negozi
70 m
Latteria Turnaria di Tignale
300 m
Bar Bar
Piccolo Bar
90 m
Al Portichetto
100 m
Bar
270 m
Bar Panorama Al Fil
720 m
Ristoranti Ristoranti
Osteria La Miniera
20 m
Ristorante & Pizzeria Al Torchio
90 m
Albergo Tignale
90 m
Albergo Castello
100 m
Apollo XI
150 m
Mostra tutto

Caratteristiche

Rif.:
61144363
Piano:
2 di 4 (Piano mansarda)
Balconi:
1
Camere da letto:
1
Arredamento:
Assente
Condizionamento:
Assente
Mostra tutto
Prezzo Prezzo
€ 180.000
Rata mutuo Rata mutuo
€ 854 / mese
Spese annue Spese annue
€ 0
Proponi il tuo prezzoProponi il tuo prezzo

Classe Energetica

G
G
G
G
G
G
G
G
G
EP globale non rinnovabile:
150.00 kW h/m² anno
EP globale rinnovabile:
0.00 kW h/m² anno
EP invernale del fabbricato:
EP estiva del fabbricato:
Anno di costruzione:
1950
Riscaldamento:
Autonomo
Tipo impianto:
A radiatori
Tipo alimentazione:
Metano

Ti interessa visionare l'immobile?

Fissa un appuntamento  Fissa un appuntamento

Richiedi informazioni

Clicca su Leggi per aprire l'informativa
* Questi campi sono obbligatori

Calcola il tuo mutuo

Semplice e senza impegno
Anticipo

( % )
Mutuo

( % )

pochi semplici passi

inserisci i tuoi dati
Questionario completato
Grazie per aver richiesto un appuntamento senza impegno con un nostro Consulente del Credito e Assicurativo.

Hai inserito correttamente tutti i dati necessari e a breve riceverai una e-mail con un link da convalidare per inviare i tuoi dati.
Affiliato
Alto Garda Intermediazioni Srl
Via Don Primo Adami, 11 25084 Gargnano (BS)

Il nostro staff


  • Elisa Civini
    Affiliata

  • Andrea Merigo
    Coordinatore

  • Alice Nichele
    Affiliata
Via Don Primo Adami, 11 25084 Gargnano (BS)
Zona: Gargnano-Limone sul Garda-Tignale-Tremosine
Mostra su mappa
Affiliato
Alto Garda Intermediazioni Srl
Via Don Primo Adami, 11 25084 Gargnano (BS)

2026 Tecnocasa Franchising S.p.A. - P. IVA 08365160152 - Via Monte Bianco 60/A 20089 Rozzano (MI). Ogni agenzia ha un proprio titolare ed è autonoma. Privacy policy | Policy utilizzo | Cookie policy